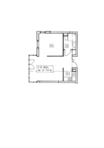
Grundriss Typ B